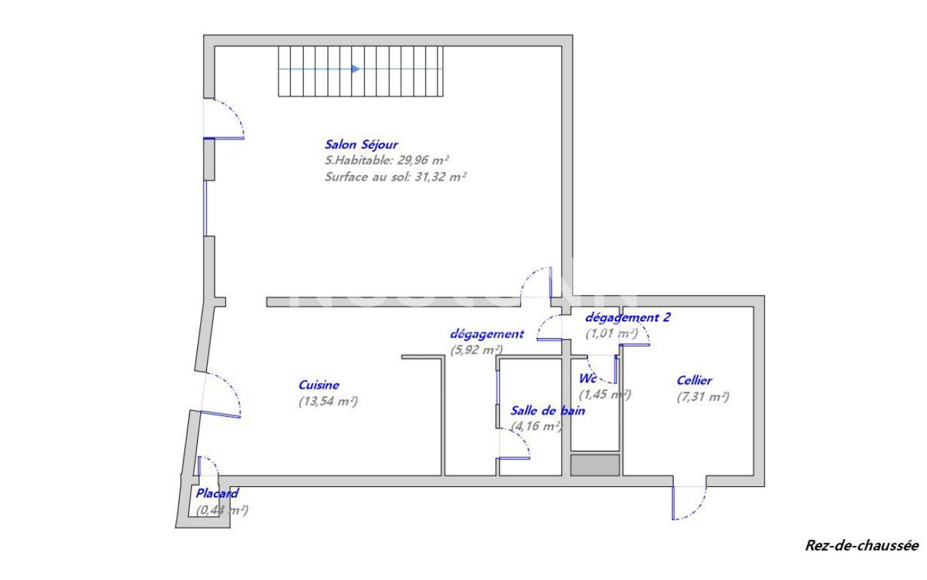
Maison à rénover 85m² à Cerans Foulletou | Maisons à Rénover